Dieses moderne Einfamilienhaus aus dem Jahr 2016 bietet mit einer Wohnfläche von 172 m² und insgesamt sechs Zimmern ausreichend Platz für die ganze Familie. Die großzügige Raumaufteilung sorgt für ein angenehmes Wohngefühl und bietet zahlreiche Gestaltungsmöglichkeiten.
Beim Betreten des Hauses empfängt Sie ein einladender Eingangsbereich, der direkt in den offenen Wohn- und Essbereich führt. Die angrenzende Küche ist modern gestaltet und verfügt über alle notwendigen Geräte, die das Kochen zum Erlebnis machen. Die Küche ist in hellgrauer Holzoptik mit grauem Fliesenboden gehalten und bietet durch einen integrierten Abstellraum zusätzlichen Stauraum für die täglichen Dinge.
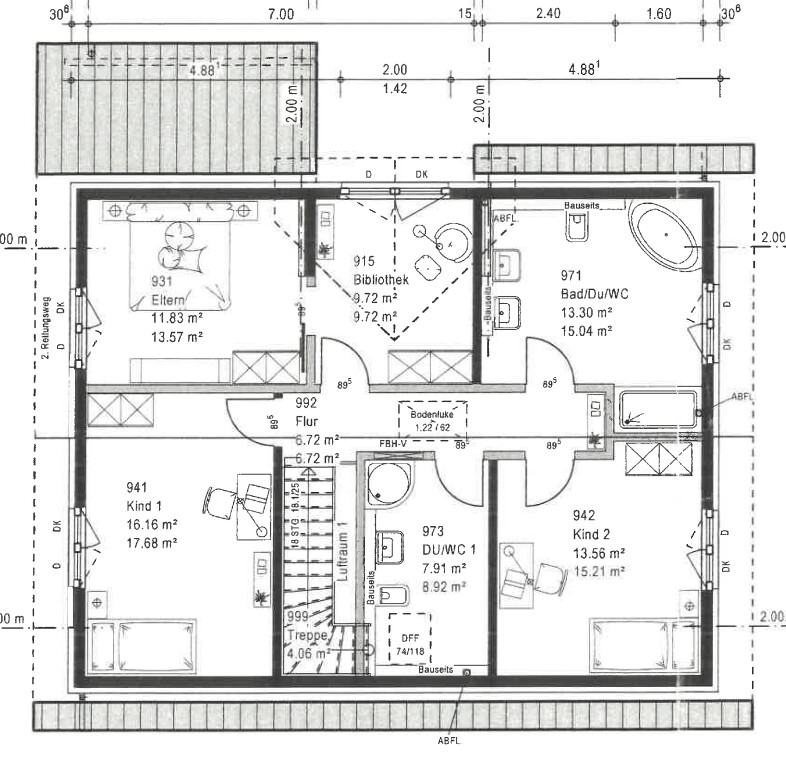
Besonders ist das barrierefreie Zimmer im Erdgeschoss und das nahegelegene Duschbad (Falls das Treppensteigen schwer fällt). Im Obergeschoss befinden sich ein Elternschlafzimmer, das durch eine angrenzende Bibliothek, die auch als Ankleide genutzt werden kann, ergänzt wird, sowie zwei Kinderzimmer. Ein großes Elternbad und ein Kinderduschbad sorgen für Komfort und Privatsphäre, ideal für die große Familie, die Wert auf Privatsphäre legt.
Die Fenster lassen viel Tageslicht herein und schaffen eine helle und freundliche Atmosphäre. Das Haus ist mit einer Energieeffizienzklasse A ausgezeichnet, was für niedrige Energiekosten und ein nachhaltiges Wohnen sorgt. Der Hauswirtschaftsraum im Erdgeschoss bietet zusätzlichen Stauraum und Platz für die Technik.
Der Außenbereich lädt mit einer großzügigen Terrasse zum Entspannen ein und bietet Kindern viel Platz zum Spielen. Der Garten und die Einfahrt sind noch nicht angelegt, was Ihnen die Möglichkeit gibt, Ihre Vorstellungen und Wünsche nach Ihren Vorstellungen zu entfalten.
Die ruhige Nachbarschaft und die direkte Nähe zu Kindergarten und Schulen machen dieses Haus besonders attraktiv für Familien mit Kindern.






















